9.8 de 48 reseñas

Cabina de ducha portátil prefabricada para camping

“¿Buscas una ducha portátil camping? Descubre modelos completos de plástico o duchas prefabricadas de lujo, ideales para campings, obras y más.”

Ducha portátil camping

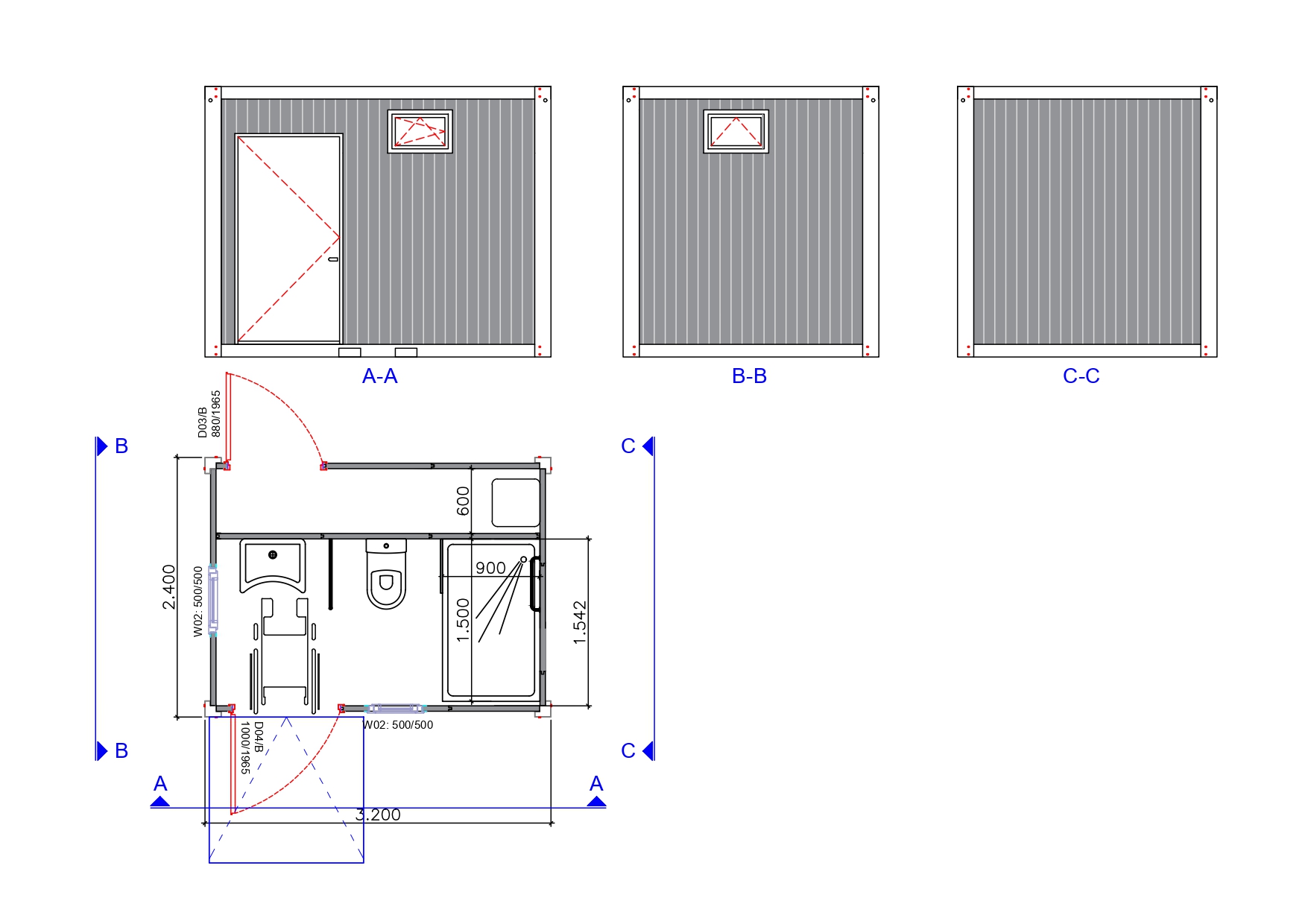
Si estás buscando una ducha portátil camping, aquí encontrarás soluciones prácticas y duraderas. Ofrecemos duchas portátiles de plástico HDPE ligeras y resistentes, así como cabinas de ducha prefabricadas de lujo totalmente equipadas. Nuestras unidades son ideales para campings, obras, eventos o como ducha temporal durante una renovación del baño.

Las versiones de plástico son ligeras, fáciles de limpiar y disponibles con depósito o conexión sencilla. Las duchas prefabricadas ofrecen aislamiento completo, iluminación LED y una base con desagüe y grifo mezclador. Todos los modelos son plug & play, listos para usar y personalizables según tus necesidades.

Ducha prefabricada para camping

Una ducha prefabricada es la solución perfecta para quienes buscan comodidad y privacidad en el camping. Cada vez más campings apuestan por duchas portátiles prefabricadas para ofrecer a sus huéspedes instalaciones limpias, modernas y privadas.

Nuestra cabina de ducha portátil prefabricada está completamente aislada, ventilada y equipada con iluminación LED, bandeja de ducha y grifo mezclador. También ofrecemos modelos más ligeros de plástico, fáciles de transportar, ideales para un uso temporal o para empresas de alquiler.

  • Versión aislada de lujo o ligera de plástico HDPE
  • Con bandeja, desagüe e iluminación LED
  • Fácil de instalar, limpiar y mantener
  • Perfecta para campings, glamping o parques vacacionales

Cabina de ducha portátil para reformas

Una cabina de ducha portátil es ideal durante la reforma del baño. Estas duchas compactas se conectan fácilmente y proporcionan una ducha completa con desagüe y opción de agua caliente.

Los modelos de plástico son ligeros y fáciles de mover, mientras que las duchas prefabricadas aisladas ofrecen mayor confort durante todo el año. Gracias a su ventilación e iluminación LED, garantizan una experiencia agradable incluso en invierno.

  • Solución cómoda y compacta para renovaciones
  • Instalación rápida y fácil limpieza
  • Disponible con o sin calentador de agua
  • En versión plástica o prefabricada aislada

Cabina ducha prefabricada con calentador

Nuestra cabina ducha prefabricada con calentador y bomba es perfecta para lugares sin conexión fija de agua. Ofrece agua caliente y total comodidad, ya sea en campings, alojamientos temporales o casas de vacaciones.

Estas unidades prefabricadas plug & play vienen completamente equipadas con bandeja, grifo mezclador, desagüe y, opcionalmente, un calentador de 50 litros. La versión de plástico es más ligera pero igual de duradera y fácil de limpiar.

  • Sistema completo con calentador y bomba
  • Agua caliente instantánea
  • Ideal para campings, obras y glamping
  • Disponible en versión plástica o de lujo

Caseta ducha precios

Los precios de las casetas ducha varían según el tamaño, el diseño y los accesorios incluidos. Las duchas portátiles de plástico son más económicas y perfectas para alquiler o uso temporal. Las duchas prefabricadas de lujo son una inversión a largo plazo para campings o alojamientos que buscan ofrecer máximo confort.

Adaptamos cada modelo a tus necesidades y preparamos presupuestos personalizados, gratuitos y sin compromiso. En uno o dos días laborables recibirás toda la información sobre equipamiento, entrega y precio.

  • Precios personalizados según cantidad y equipamiento
  • Versión plástica o prefabricada aislada
  • Presupuestos claros y sin costes ocultos
  • Entrega rápida en toda Europa